Taman Perindustrian Pusat Bandar Puchong
For Rent
1.5 Storey Linked Factory Taman Perindustrian Pusat Bandar Puchong
2 weeks ago
RM 6,600
Land Area
2000 Square Feet
Build-Up Area
3175 Square Feet
Bedroom(S)
No Information Provided
Bathroom(S)
3 Bathroom(s)
Parking(S)
No Information Provided
Details
Furnishing
Partially Furnished
Available Date
19 Nov 2025
Posted Date
19 Nov 2025
Property Type
Factory
Orientation
South East
Jalan Industri Pbp 9, Taman Perindustrian Pusat Bandar Puchong, Puchong, Selangor, Malaysia
Description
For RentFactory
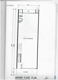
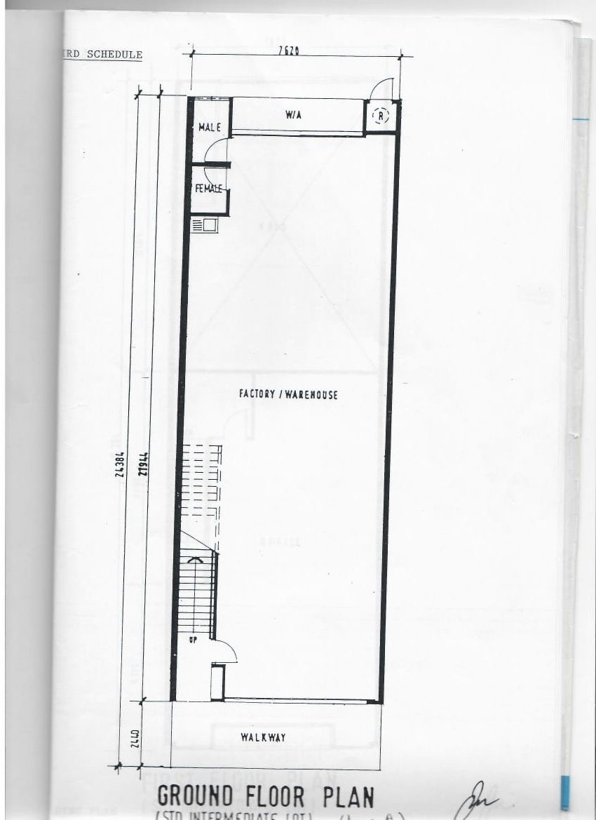
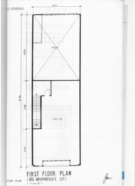
*1.5 storey linked factory in Taman Perindustrian Pusat Bandar Puchong*
~Intermediate unit
~Land area 25'x80'
~Built-up 3,175sf
~1st floor office 25'x47'
~ceiling height 24'
~Partially furnished
~Facing south east
~1st floor office with air-cond, cabinet, tables & chairs
$$ Rental RM6,600
Contact 0122992587 (Loh)
WhatsApp: https://wa.me/60122992587/
