Spacious Like-new 2.5-storey Terrace Home
For Sale
11 months ago
RM 950,000
Land Area
1600 Square Feet
Build-Up Area
3128 Square Feet
Bedroom(S)
5 Bedroom(s)
Bathroom(S)
4 Bathroom(s)
Parking(S)
2 Parking Bay(s)
Details
Furnishing
Unfurnished
Cost Per Unit
RM 594
Available Date
10 Dec 2024
Posted Date
10 Dec 2024
Land Tenure
Freehold
Property Type
Terrace House / Linked House
Status
Non Bumi
Property Title
Individual Title
Occupancy
Vacant
Orientation
West
18, Jalan Sungai Bertih 3, Taman Gembira, Klang, Selangor, Malaysia
Description
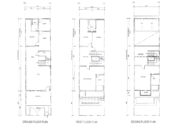
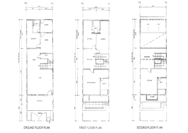
Brand new never-before-occupied large 3-storey house in an old and well-established Klang neighbourhood. Spacious with lights, fans and auto-gate installed. A grass field for sports is obliquely across the road from the front.
Description 2
全新、没人住过的宽敞3层楼排屋。自动门、电灯、风扇都安装好了。屋前斜对面有公共草场,方便运动,空气清新。
