No Image
No Image
No Image
No Image
No Image
No Image
No Image
No Image
No Image
No Image
No Image
No Image
No Image
No Image
No Image
No Image
No Image
No Image
Featured

Taman Equine Seri Kembangan

For Rent
3 years ago
RM 14,500
Build-Up Area
4733 Square Feet
Bedroom(S)
No Information Provided
Bathroom(S)
No Information Provided
Parking(S)
No Information Provided

Details

Furnishing
Basic Unit
Available Date
26 Apr 2022
Posted Date
26 Apr 2022
Property Type
Shop Office
Taman Equine, Seri Kembangan, Selangor, Malaysia

Description

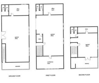
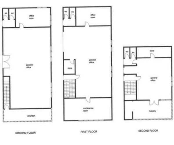
2.5 Storey Shop Office for Rent at Taman Komersial Equine, Seri Kembangan * Semi detached type * Land area 3,563 sqft * Built up 4,733 sqft * Shop frontage 36.25 ft x 98.42 ft depth * Unit front, side and back view * Side extra 10 ft land and more at the back ** Ground floor - General office, 1 Office room, 2 Toilet & Verandah ** First floor - General office, 1 Office room, 1 Conference room, 1 Store room & 2 toilets ** Second floor - General office, 1 Store room & 2 toilets * Asking Rental RM14,500 per month (Whole floors) Please contact us below for viewing appointment Shafiq Chua REN41874 @ 016-8873984 wasap.my/60168873984/2.5StyShopOfficeRentTmnKomersialEquine
Wan Azemi Bin Wan Da...
Verified Agent
Reg No: Ren 15376
{{ formatAgentPhone(list?.phone ?? list.author.mobile) }}
Add to Favorites