Telok Panglima Garang
For Sale
3 Storey Semi-d Light Industrial Factory Telok Panglima Garang, New Project, Low Booking
4 days ago
RM 5,300,000
Land Area
13105 Square Feet
Build-Up Area
9510 Square Feet
Bedroom(S)
No Information Provided
Bathroom(S)
No Information Provided
Parking(S)
No Information Provided
Details
Furnishing
Basic Unit
Cost Per Unit
RM 404
Available Date
04 Dec 2025
Posted Date
04 Dec 2025
Land Tenure
Freehold
Property Type
Factory
Status
Non Bumi
Property Title
Individual Title
Occupancy
Vacant
Description
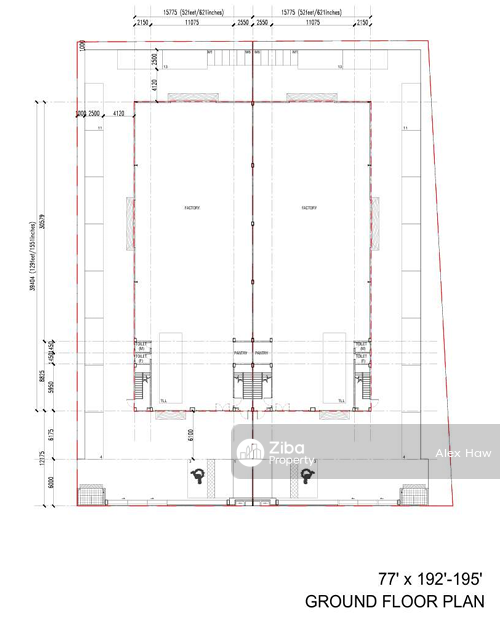
3 Storey Semi-D Light Industrial Factory Telok Panglima Garang l New Unit For Sales :-
* Hurry Up To Call Viewing *
• Actual Unit Picture
• Super Low Down Payment
• Below Market Value~
• Provide One Stop Loan & Lawyer Services
• 100% Booking Fee Refundable
• Property Details :-
- Type : Light Factory
- Freehold
- Non Bumi Lot
- Land Area : 13,105 Sqft
- Built Up : 9,510 Sqft
- High Ceiling :-
Production Floor - 40 Ft
Office Floor - 12 Ft
- 3 Phase Power Supply 300Amp
- Total Land Area 10 Acres
- Total 20 Units
- New Project
• Kindly Call / WhatsApp Me Appointment & Viewing :-
- Alex Haw - REN 25170
- 012-251_8831
- https://wa.me/60122518831
- Selling Price - RM5.3Mil+
********** Property Wanted **********
Dear "Owner/Landlord"
If you have any Property willing to SALE / RENT,
We have potential BUYER & TENANT.
We will provide one-stop solutions step by step
Looking forward for your Call / WhatsApp / SMS.
