Townsquare Gamuda Cove
For Rent
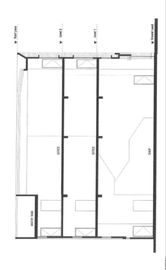
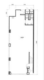
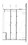
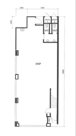
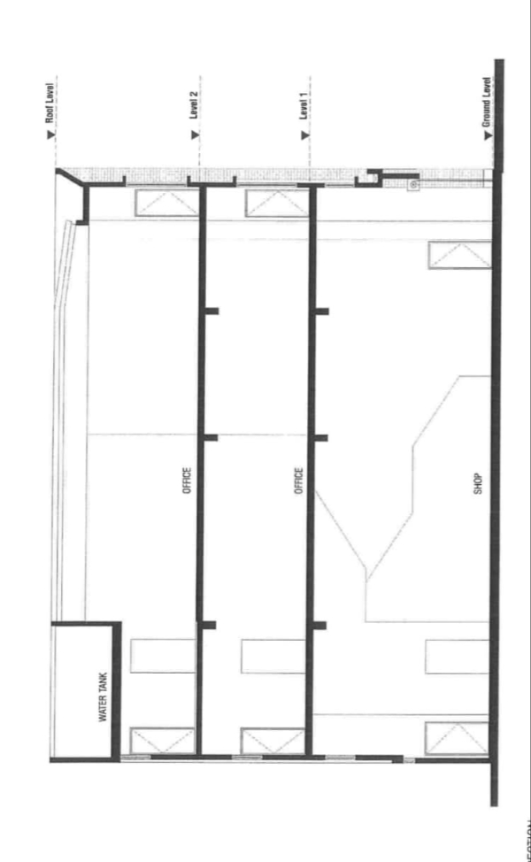
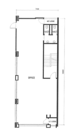
En Bloc Endlot 3-storey Shop Office 24×62 Sq Ft
4 months ago
RM 15,000
Build-Up Area
4464 Square Feet
Bedroom(S)
No Information Provided
Bathroom(S)
No Information Provided
Parking(S)
No Information Provided
Details
Furnishing
Basic Unit
Available Date
24 Jul 2025
Posted Date
24 Jul 2025
Property Type
Shop Office
Status
Non Bumi
Property Title
Individual Title
Gamuda Cove, Selangor, Malaysia
Amenities
Original Condition
Description
To let BRAND NEW.
CHEAPEST RENTAL
3 STOREY SHOPLOT + OFFICE ENDLOT
TOWNSQUARE GAMUDA COVE
PERSIARAN COVE UTAMA.
42700 KUALA LANGAT.
24x62
Build up 4464 sqft ( 3 storey)
Enbloc
- SplashMania Water Park.
==================
Rental RM 15k / Month
===================
